Комерційне приміщення В Київські області, місто Ірпінь, район Центрального парку, вулиця Лісова (№ 24-102-408)
Ціна: 79 500 $

Адреса: Лісова, 45, Ірпінь, Ірпінь, Київська
Характеристики
| Ціна: | 79 500 $ |
|---|---|
| № об'єкта: | 24-102-408 |
| Тип: | торгівельні площі, об'єкт сфери послуг, інше |
| Поверх: | 1 / 10 |
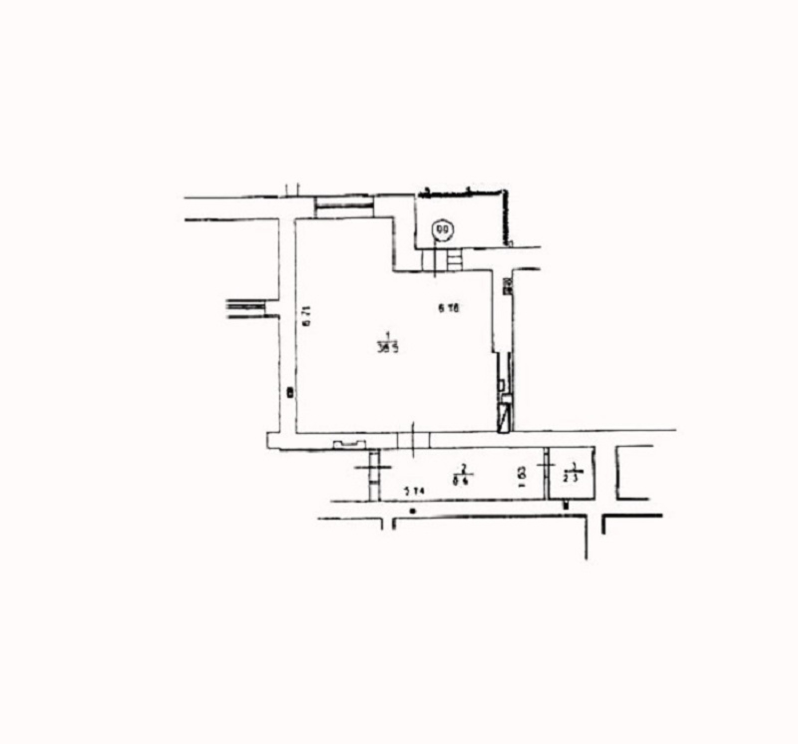
| Площа: | 50 м2 |
| Додатково: | окремий вхід |
Опис
Комерційне приміщення В Київські області, місто Ірпінь, район Центрального парку, вулиця Лісова;
Максимально заселений район, максимальна прохідність;
Приміщення на першому , високому поверсі, окремий вхід;
Загальна площа приміщення 50 метрів, основний зал 36 метрів, підсобне приміщення 8,4 метри, санвузол 2,3 метри;
В приміщенні виконаний якісний ремонт в світлих тонах: плитка на підлозі, натяжна стеля; Встановлено кондиціонер;
Санвузол укомплектований, гаряча вода - бойлер;
Вартість приміщення з ремонтом 79 500 доларів;








